- 藤井厚二 Koji Fujii
- 1926(2022翻新)

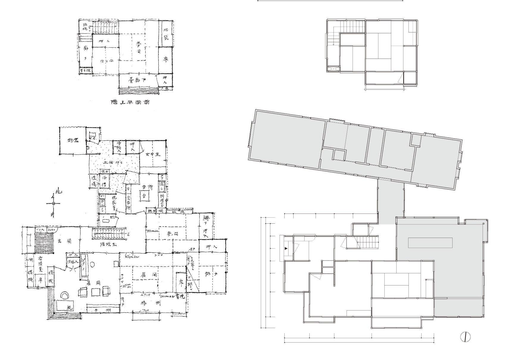
藤井厚二为京都帝国大学同事、工业化学研究者喜多源逸于大正末期设计的住宅。建地北临北白川疏水,北側邻威廉・梅里尔・沃里斯设计的驹井家住宅,南側隔巷即增田友也设计的住宅,是历史建筑密集之稀有地段。后历经增改筑,局部已丧失原貌,然仍充分反映藤井空间意象,2006 年被登录为国家注册有形文化财,2018 年入选“装点京都的建筑物”。
一度面临存续危机,2016 年在“住宅遗产信托”与多方协作下成功传承。传承后,将增筑部分改为出租住宅,原有栋则作为陈列 vintage 家具与艺术品之画廊,持续摸索“取回最初空间”并赋予新价值。为维系与活用,持续施行提升文化财价值的措施;调查过程中发现,竣工当初外墙并非白灰泥,而是浅葱色大津漆喰。
藤井偏爱的“伊吕哈枫”与白墙相映的喜多邸形象过于深入人心,因而得知原为浅葱色时颇为震惊。经走访,确认至少近 50 年皆维持白壁,这段绝不短暂的风景记忆亦应被尊重。然经现场专家会议反复讨论,并考量建筑未来之传承,最终决定恢复为浅葱色外壁。
资料来源:
- Casa BRUTUS 2025 年 7 月号「和風モダンを学ぶ。」
- 新建筑/住宅特集/住宅遺産の承/再生 喜多源逸邸 Restoration – The Gen-itsu Kita Residence
