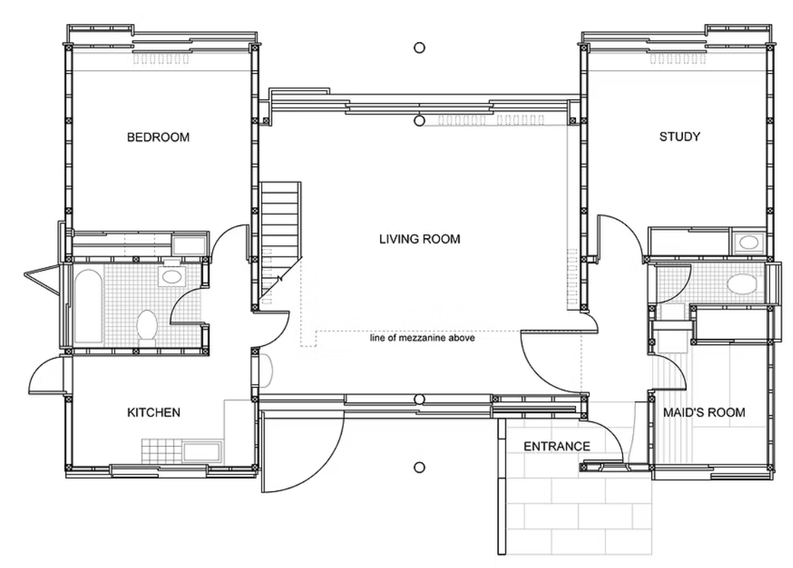
前川国男自宅 Maekawa Kunio House 前川国男 Maekawa Kunio 1942 前川国男邸采用了日本传统的木结构和人字形瓦片斜屋顶,同时融入了现代主义的设计理念。建筑的外观具有明显的日本传统建筑特征,如大屋顶和木柱,而内部空间则打破了传统日式民居的小块分割,形成了开放的起居空间。