- 阿道夫·路斯 Adolf Loos
- 1921-1924
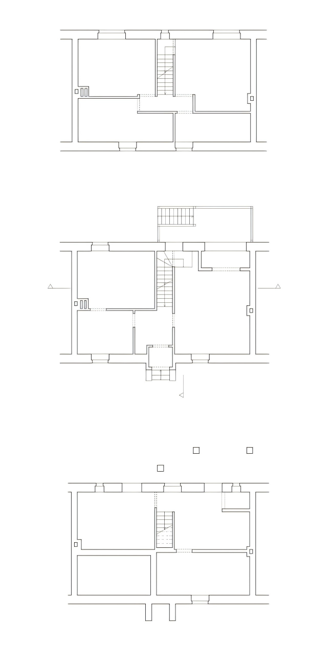
路斯以英国田园城市为蓝本、着手规划郊区社会住宅的起点可追溯至1918 年。作为“Kriegerheim”住宅合作社的董事会成员,他为第一次世界大战中受伤的退伍军人设计住房。当时,失去家园的人们开始在被划定为开发目标的赖恩茨(Lainz)地区落脚;路斯向合作社提议在此建造这座田园城市。方案中,一组面向赫尔墨斯大街(Hermesstraße)的联排住宅背面南侧为果园;主路呈笔直的东西走向。城市设计层面的考量包括:在交叉路口附近布置较高建筑以标识位置,并在地段最高处设置广场。为避免单调,门厅及外部构造的尺寸与位置均随朝向与具体情境而变化。路斯依据地块宽度提出四种住宅类型:所有住宅均设地下室作服务空间,底层为起居室,二层为卧室,屋顶为坡屋顶。首批八户于 1921 年 9 月建成;至 1924 年,共完成 36 组建筑,并对木楼梯等曾受批评的细节进行了小幅改进。


[…] 赖因茨公营住宅 […]
[…] 莱因茨集合住宅 Lainz Social Housing 鲁弗尔住宅 Rufer House 斯坦纳住宅 Steiner house […]