RCR︱苏拉吉博物馆 Soulages Museum︱图纸数据︱PDF下载

苏拉吉博物馆图纸数据矢量PDF下载

平面图 Plans3张A41:400
剖面图 Sections 2张A41:400
区位图 Location1张A41:10000
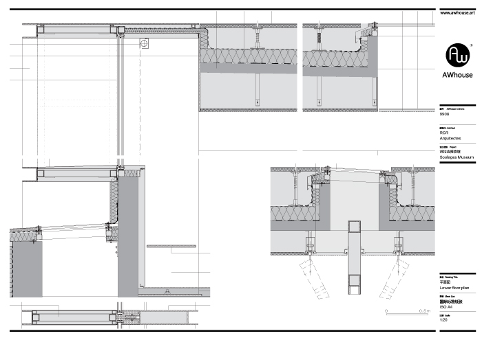
构造大样图 Detail3张A41:20

图纸下载



此处内容需要付费才能显示

¥19立即支付 付费内容